VILLA SINGOLA CON PISCINA

In vendita
Villa
Quarto d'Altino (Crete)
519.000 €
Descrizione
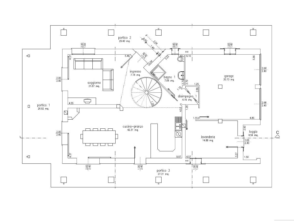
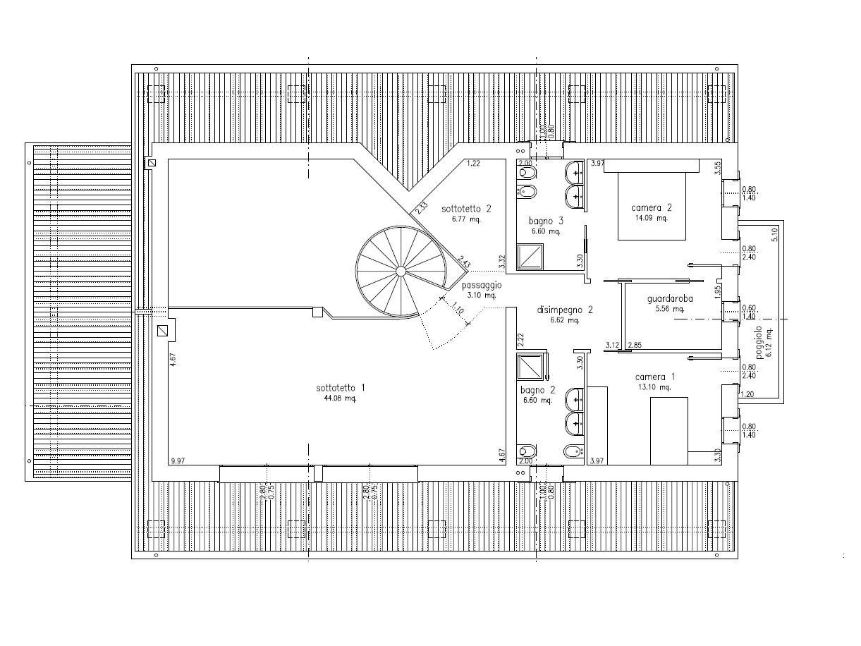
Villa singola edificata nel 2011 con particolare attenzione alle finiture e al comfort, che si presenta in eccellenti condizioni d'uso. La zona giorno è un open space di circa 70 mq calpestabili con ingresso nel soggiorno, cucina a vista e ampia zona pranzo. È presente una doppia uscita con ampie vetrate scorrevoli sullo scoperto privato dove troviamo la piscina, indiscutibile valore aggiunto di questa abitazione. Completano il piano terra il bagno, il locale lavanderia e il garage doppio con due basculanti coibentati, motorizzati e dotati di porta. Al piano superiore, caratterizzato da tetto in legno e travi a vista e raggiungibile tramite una scala di design, troviamo un bell'ambiente con vista sul soggiorno. Sullo stesso piano si sviluppa il disimpegno della zona notte, dove si trovano il bagno del piano, un'ampia camera doppia e la camera matrimoniale con cabina armadio e bagno padronale.
L’immobile è dotato di aria condizionata con split su ogni ambiente, il riscaldamento è a pavimento con caldaia a condensazione ed è presente anche in garage, allarme, zanzariere, camino a pellet nella zona giorno. Presente pompeiana di 30 mq completa di tende da sole.
Situata in un tranquillissimo quartiere residenziale di sole villette.
Caratteristiche principali
Codice:
V001590
Città:
Quarto d'Altino (Crete)
Categoria:
Villa
Locali:
4
Camere:
2
Mq:
250
Mq Box:
2
Anno:
2011
Classe energetica:
C
100,1
Stato Immobile:
Ottimo
Grado:
Signorile
Posizione:
Periferia
Panorama:
Vista Aperta
Arredi:
Solo Cucina
Tipo Soggiorno:
Soggiorno
Tipo Cucina:
A Vista
Riscaldamento:
Autonomo
Tipo Riscaldam.:
Caldaia a Condensazione
Tipo Impianto:
Pavimento
Fonte Energetica:
Metano
Acqua Calda:
Autonoma
Raffrescamento:
Split
Infissi:
Legno Doppio Vetro
Serramenti:
Ottimo
Persiana:
Oscurante Legno
Pavim. Giorno:
Parquet
Pavim. Notte:
Parquet
Pavim. Cucina:
Parquet
Pavim. Bagno:
Ceramica
Accessori
Antifurto
Aria Condizionata
Armadio a Muro
Camino
Canna Fumaria
Cancello Elettrico
Doppi Vetri
Doppio Ingresso
Piscina
Porta Blindata
Stufa a Pellet
Zanzariere
Cookie preference